
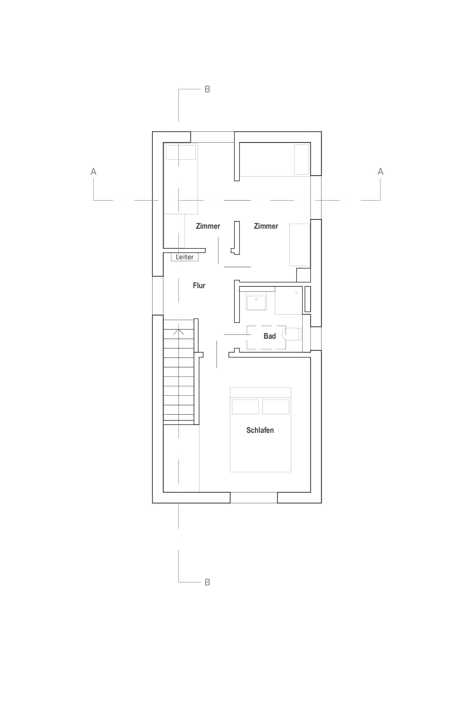
Neubau Ferienhaus am Hainer See
Am Nordufer des Hainer Sees südlich von Leipzig wurde ein Ferienhaus in Holzrahmenbauweise errichtet.
Durch die Hanglage und komplizierte Gründung am ehemaligen Tagebau ist das Kellergeschoss halb in das Gelände eingelassen und schafft Platz für einen PKW-Stellplatz und eine Sauna.
Darüber erstrecken sich zwei Geschosse mit einem offenen Wohn- und Essbereich, einer angrenzender Terrasse und 3 Schlafzimmern mit Bad.
Die Fassade erinnert mit ihren unbesäumten Lärchenholzbrettern an die Lage am Wasser und schafft es mit den aus dem Inneren entwicklten Öffnungen die Privatheit trotz der engen Nachbarschaft zu wahren und gleichzeitig die besondere Lage und Ausrichtung zum See zu nutzen.
■ Auftraggeber: privat ■ Leistungen: LP 1 - 9 ■ Planungszeit: 2017 - 2019 ■ Nutzfläche (NF 1-7): 105m² ■ Geschossfläche: 165m² ■ In Zusammenarbeit mit Rainer Schmidt Landschaftsarchitekten ■ Fotos: Joshua Delissen
zurück zu Projekten
nächstes Projekt















