
Neubau Kita mit Mehrzweckhalle in Bark
2. PREIS
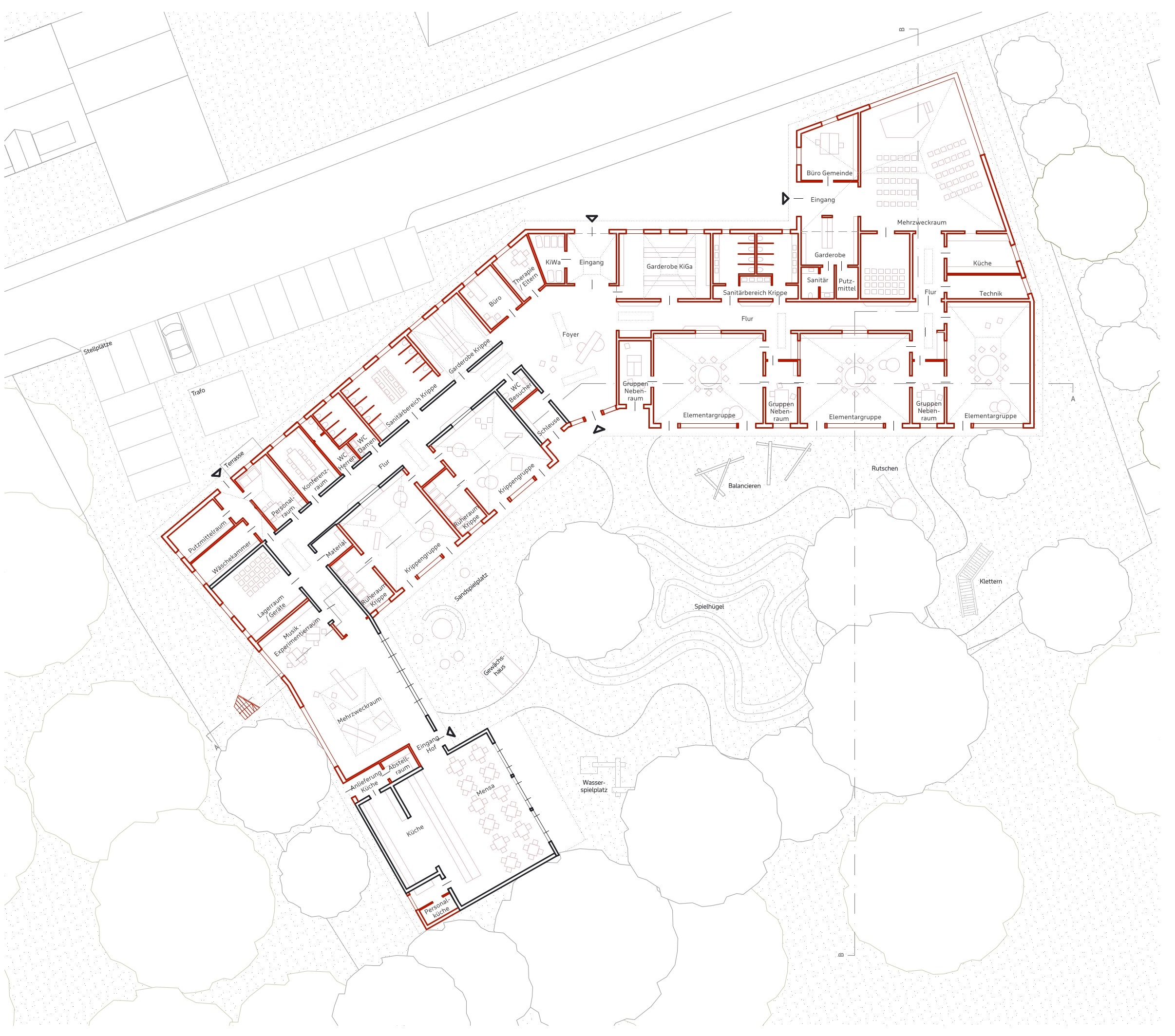
Unter dem Motiv der Heidelandschaft entwickeln die Verfasser einen zeichenhaften Übergang vom Dorf zum Naturschutzgebiet. Sie nutzen dabei die bestehenden Rohbaustrukturen und verfolgen die Idee des Weiterbauens in vier Bauabschnitten.
Alle Gebäudeteile werden unter einem sogenannten „Heidedach“ zusammengefasst: Ein begrüntes Flachdach erhält durch unterschiedlich große, pyramidenförmige Oberlichter einen kleinteiligen Maßstab. Diese Oberlichter versprechen gleichermaßen eine signifikante äußere Erscheinung und prägendes Innenraumerlebnis.
Der bestehenden Gebäudestruktur folgend entwickeln die Verfasser einen polygonalen Baukörper, mit dem großen Vorteil, daß ein Großteil der vorhandenen Außenfläche und der gewachsenen Bäume erhalten werden können. Auch der ausdrückliche Wunsch der Kitaleitung nach einer zusammenhängenden Spielfläche wird erfüllt.
Durch die schräg geführte Fassade ergeben sich strassennah ausreichend Stellplatzflächen und ein angemessen großer Eingangsbereich. Das mittig gelegene Eingangsfoyer ist gut proportioniert und führt mit kurzen Wegen zu den Elementar- und Krippen-Gruppen und auf direktem Weg in den Außenraum mit einem kleinen überdachten Übergang. Aus Sicht der Landschaftsarchitektur werden liebevoll ausdifferenzierte Bereiche gestaltet, die sich sinnvoll an den Gebäudekörper angliedern und maßstäbliche Räume für den Vorplatz und das Parken ergeben. Durch die Gebäudekonfiguration ergibt sich ein großer zusammenhängender Spielbereich, der sich dennoch gleichermaßen vielfältig und übersichtlich darstellt.
Insgesamt stellt der Entwurf eine markante wie eigenständige Lösung dar, dem es in besonderem Maße gelingt, den baulichen wie den gewachsenen Bestand umsichtig weiterzuentwickeln. In wirtschaftlicher Hinsicht bewegt sich Arbeit im oberen Kostensegment. Der Erhalt der bestehenden Bausubstanz wäre im Weiteren und Einzelnen auf Sinnhaftigkeit zu prüfen.
(Auszug aus Preisgerichtsprotokoll)
■ Auslober: Gemeinde Bark ■ Leistungen: LP 1 - 2 ■ Planungszeit: 2024 ■ In Zusammenarbeit mit Rainer Schmidt Landschaftsarchitekten ■ Auszeichnung: 2. Preis
zurück zu Wettbewerben
nächster Wettbewerb













