
Neubau einer Trauerhalle in Papitz
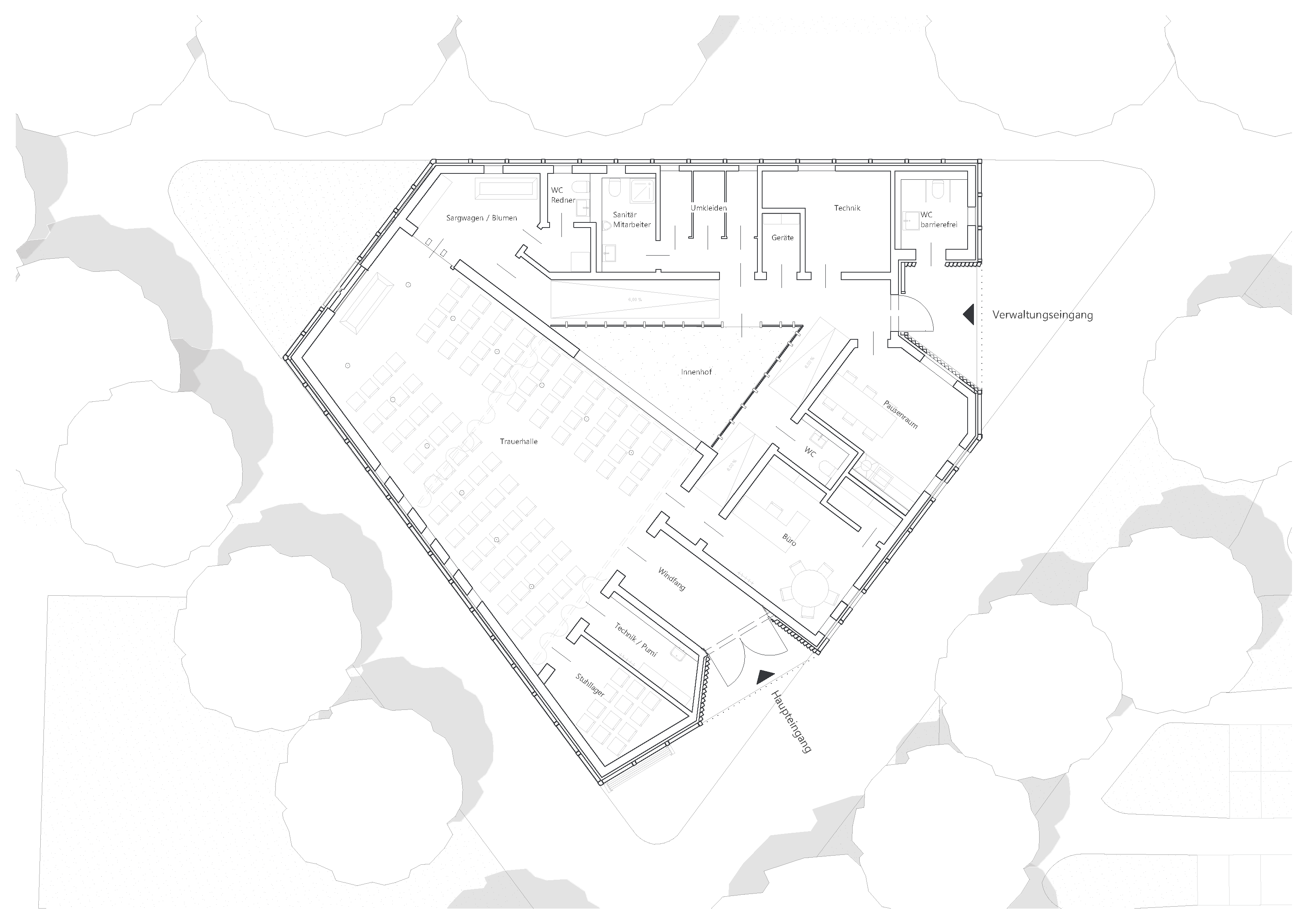
Auf dem Zentralfriedhof Schkeuditz ist der Neubau einer Trauerhalle für Beerdingungen bis zu 100 Personen, mit ergänzenden Verwaltungsräumen für die Friedhofsverwaltung geplant.
Ziel des Entwurfs ist es, einen würdevollen, zeitgemäßen Ort des Abschieds zu schaffen, der sich sensibel in die parkähnliche Friedhofsanlage einfügt und den bestehenden Charakter des Ortes wahrt. Großzügige Einschnitte markieren die Eingänge und schaffen klare Orientierung. Der Neubau ordnet sich mit zurückhaltender Haltung in das gewachsene Umfeld aus Grünstrukturen, Wegen und Bestandsbäumen ein – der Erhalt der Landschaft und die Ruhe des Ortes stehen im Vordergrund.
Das Gebäude versteht sich als Einheit aus zwei Funktionsbereichen – der Aussegnungshalle und der Friedhofsverwaltung – die jeweils über eigene überdachte Eingänge verfügen und im Inneren miteinander verbunden sind. Ein zentraler Innenhof bringt Tageslicht in die Räume und schafft eine ruhige, introvertierte Atmosphäre.
Konstruktiv basiert der Bau auf einem Holzrahmensystem über einem Stahlbetonsockel, ergänzt durch die Holzpfostenriegelfassade mit Holzlamellen Einlage als Sonnenschutz . Eine hinterlüftete Ziegelfassade und extensive Dachbegrünung verbinden die Architektur mit der umgebenden Natur. Innen prägen sichtbare Holzoberflächen und natürliche Materialien die ruhige, warme Atmosphäre.
■ Auftraggeber: Große Kreisstadt Schkeuditz ■ Ort: Papitz, Schkeuditz, Sachsen-Anhalt ■ Leistungen: LP 1 - 9 ■ Planungszeit: 2020 - 2025 ■ in Zusammenarbeit mit Bollinger + Grohmann Ingenieure GmbH
zurück zu Projekten
nächstes Projekt













