
Löwitz Quartier Leipzig Baufeld 3
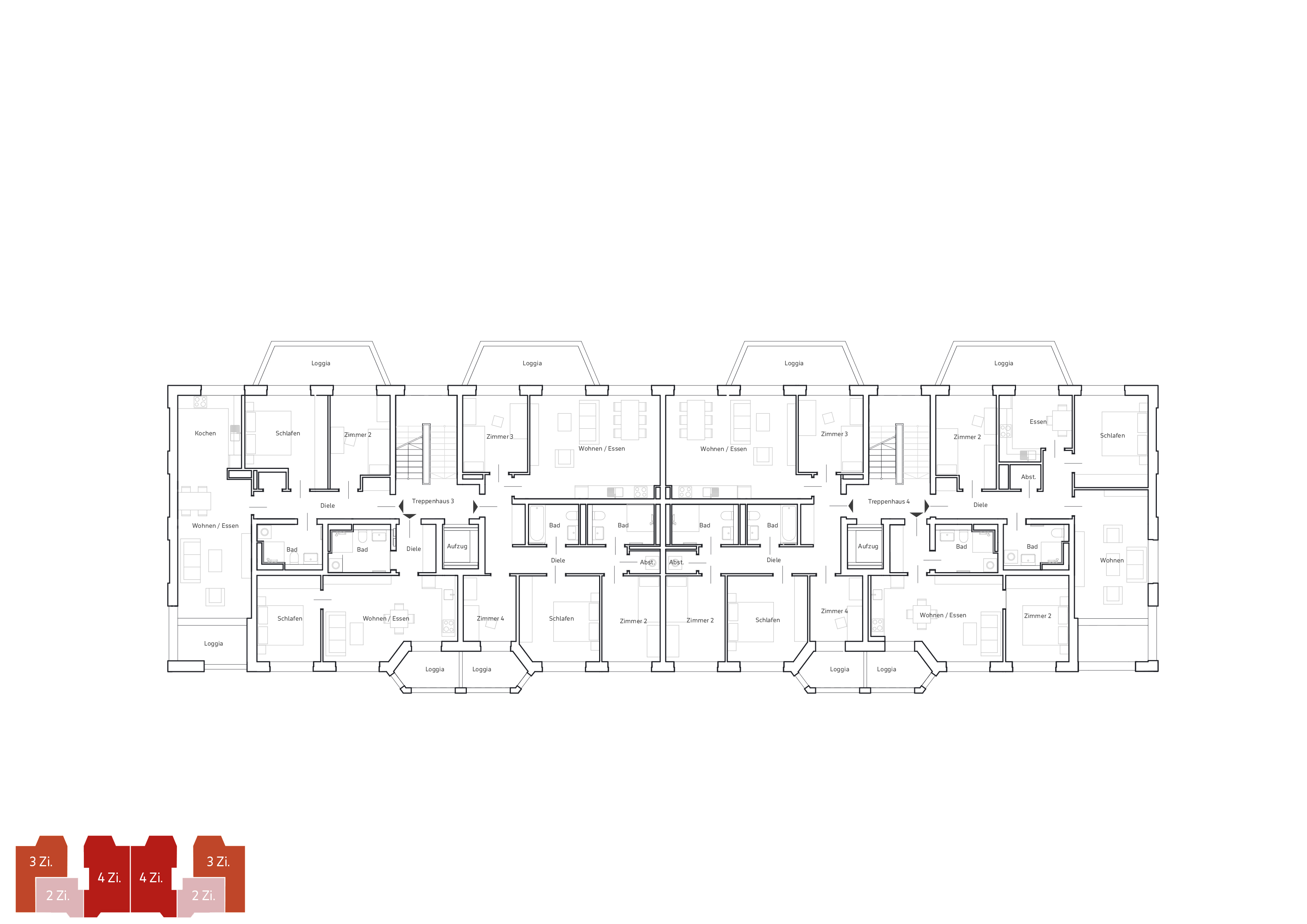
Ziel des Entwurfs für das Baufeld 3 sind zwei eigenständige und identitätsstiftende Gebäude zu schaffen, welche als Ensemble erkennbar sind und sich eindeutig in Leipzig verorten. Durch die farbliche Differenzierung und vorgegebene Kubatur entstehen zwei ähnliche Häuser, welche dennoch nicht gleich sind. Die Gebäude beruhen auf einer klar gerasterten Grundriss- und Fassadenstruktur. Die senkrechten Pfeiler aus gedämmten Hohllochziegeln bilden die Struktur der Fassade. Sie sind mit einem hellen, groben Kratzputz geplant. Die horizontale durchgehende geschossweise Bänderung, welche auch die partheseitigen Balkone einfasst, wird dazu im Kontrast in einem glatten Filzputz und einem hervorstehenden Gesimsband bestehen. Das entstehende Raster wird mit deutlich zurückgesetzten grünen bzw. roten Fliesen und den Fenstern gefüllt. Als farbig angepasster textiler Sonnenschutz sind Senkrechtmarkisen und Fallarmmarkisen an den Loggien geplant.
Die Erker stellen in einigen Wohnungen eine besondere innenräumliche Qualität dar und erlaubt den Ausblick in den Straßenraum hinein. Als harmonische angeordnete Auswölbungen der strengen Baukörper bilden sie stadträumliche Akzente, unter welchen sich straßenseitig auch die Hauseingänge befinden.
■ Auftraggeber: Leipzig Zwei GmbH & Co. KG ■ Ort: Leipzig, Sachsen ■ Leistungen: LP 1 - 8 ■ Planungszeit: 2022 - 2023 ■ 1. Preis
zurück zu Projekten
nächstes Projekt





















