![]()
Umbau zur Sonne, Bad Heimenkirch
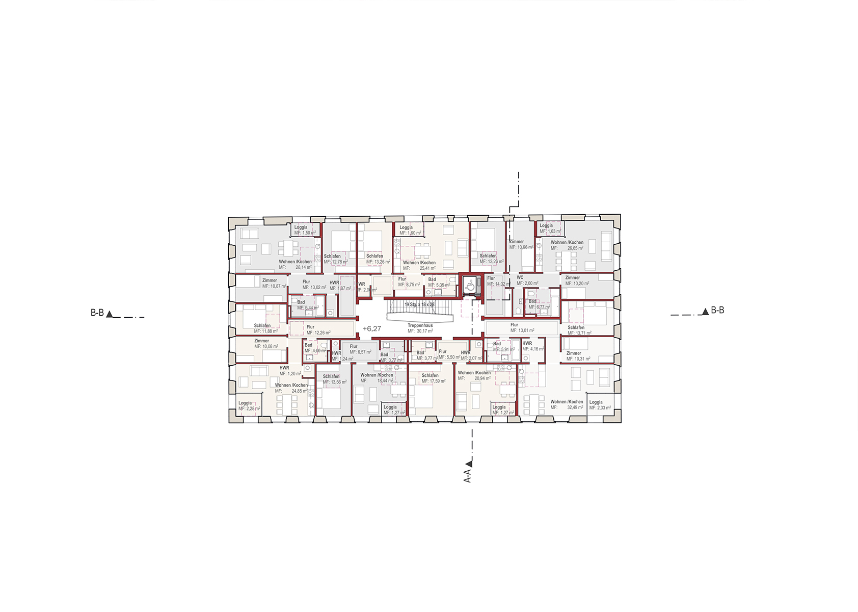
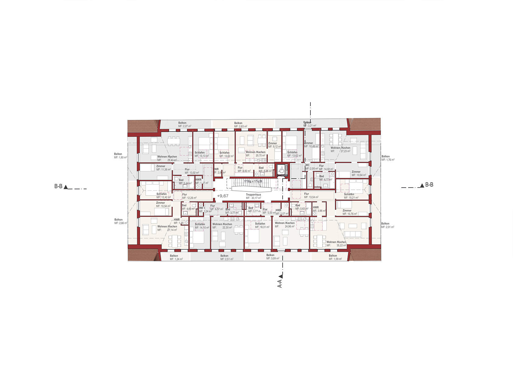
Im Gefüge von Heimenkirch nimmt der ehemalige Gasthof „Sonne“ aufgrund seiner Größe eine besondere Rolle ein. Unser Ziel ist es, den derzeitigen „schweren“ Eindruck des Bestandgebäudes aufzulockern und dabei dem Haus eine leichte, moderne, Erscheinung zu geben, ohne den ortsbildprägenden Charackter zu verändern. Das Haus bleibt „die Sonne“, wobei die Erscheinung eine Art Melange der Baugeschichte am Platz ist, da der Entwurf aus beiden Häusern, vor und nach der Umformung aus den 30 Jahren Entwurfsbestandteile, wie deren Körnung oder Schmuckelemente modern übersetzt. Dabei werden identitätstiftende und ortsbildprägende Elemente erhalten und weiterentwickelt, um den Aufbruch der neuen Nutzung am Platz zu signalisieren.
■ Auslober: Gemeinde Bad Heimenkirch ■ Ort: Bad Heimenkirch, Bayern ■ Leistung: LPH 1 - 2 ■ Planungszeit: 2019 ■ in Zusammenarbeit mit Geiger - Waltner Landschatsarchitekten
zurück zu Wettbewerben
nächster Wettbewerb








